$2,229,999
3,808
SQ FT
$586
SQ/FT
2159 Penny Lane
@ Imola Avenue - Napa
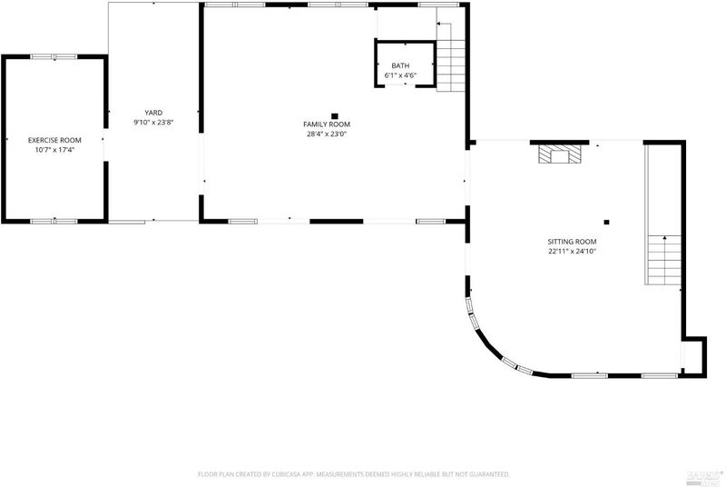
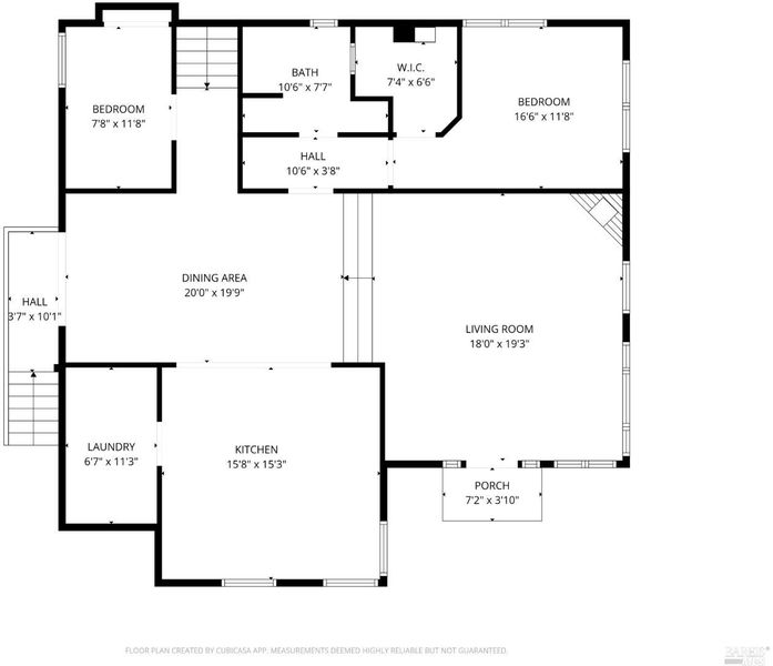
- 5 Bed
- 4 (3/1) Bath
- 10 Park
- 3,808 sqft
- Napa
-
Discover the endless possibilities that await on this expansive, level 1-acre lot in South Napa. Offering a truly peaceful country setting while remaining conveniently close to town amenities, this property presents a unique blend of privacy and accessibility, and is on city services. With the home thoughtfully situated to one side of the property, the expansive and fully usable acre offers outstanding potential for those looking to subdivide or expand into a family compound. With well water dedicated to irrigation, this versatile land provides the ideal foundation for additional dwellings, gardens, or recreational spaces, all while maintaining the peaceful, private setting and beautiful Skyline Park views. The truly spacious home boasts over 3,800 SF, providing exceptional versatility with a generous layout of 5 bedrooms (including 2 en suites) and 3.5 baths. The home offers abundant living spaces, featuring multiple distinct interior areas and various outdoor entertaining areas, making it great for any season and ensuring lots of space inside and out. Ample closet and storage space throughout adds to its practical appeal. The beautifully updated kitchen is a chef's delight and the heart of the home. It features a large island with an apron-front sink, gas range with a main oven, complemented by a second built-in oven and microwave. Loads of cabinet storage, plus additional storage and a second freezer conveniently located in the adjacent laundry room. The primary suite is a private, light-filled retreat, tastefully updated for comfort and luxury. It includes a large walk-in closet and French doors that open directly onto a newly poured concrete patio. The spacious primary bath offers dual sinks, a separate soaking tub, a beautifully tiled shower, and a private water closet. Outside, the fully fenced grounds are your ultimate blank canvas for imagination. This level, open acreage is ideal for a lush garden, secure storage for utility vehicles, accommodating 4-H animals, or installing the in-ground pool of your dreams, there is room for it all! The property also features a substantial detached 1,300+/- SF garage, which provides ample workspace for hobbies or projects along with additional covered storage. Furthermore, a detached studio space is perfectly suited for a private home office, fitness room, or dedicated creative space. This is a truly unique property and an exceptional offering in Napa Valley.
- Days on Market
- 16 days
- Current Status
- Active
- Original Price
- $2,229,999
- List Price
- $2,229,999
- On Market Date
- Dec 3, 2025
- Property Type
- Single Family Residence
- Area
- Napa
- Zip Code
- 94559
- MLS ID
- 325101253
- APN
- 046-422-017-000
- Year Built
- 1950
- Stories in Building
- Unavailable
- Possession
- Close Of Escrow
- Data Source
- BAREIS
- Origin MLS System
Napa County Rop School
Public 10-12
Students: NA Distance: 0.2mi
Napa County Opportunity School
Public K-8 Opportunity Community
Students: 3 Distance: 0.2mi
Napa County Community School
Public K-12 Opportunity Community
Students: 98 Distance: 0.2mi
Phillips Elementary School
Public K-5 Elementary
Students: 402 Distance: 0.4mi
Silverado Middle School
Public 6-8 Middle
Students: 849 Distance: 1.0mi
Mount George International School
Public K-5 Elementary
Students: 240 Distance: 1.1mi
- Bed
- 5
- Bath
- 4 (3/1)
- Double Sinks, Quartz, Shower Stall(s), Tile, Tub
- Parking
- 10
- Boat Storage, Detached, EV Charging, RV Possible, Uncovered Parking Spaces 2+, Other
- SQ FT
- 3,808
- SQ FT Source
- Appraiser
- Lot SQ FT
- 43,560.0
- Lot Acres
- 1.0 Acres
- Kitchen
- Island w/Sink, Quartz Counter, Skylight(s)
- Cooling
- Ceiling Fan(s), Central, MultiUnits
- Dining Room
- Formal Area
- Exterior Details
- Dog Run
- Flooring
- Carpet, Concrete, Luxury Vinyl Plank, Tile
- Foundation
- Pillar/Post/Pier
- Fire Place
- Gas Piped, Wood Burning
- Heating
- Central, Fireplace(s), MultiUnits
- Laundry
- Inside Room
- Upper Level
- Bedroom(s), Full Bath(s)
- Main Level
- Bedroom(s), Dining Room, Full Bath(s), Kitchen, Living Room, Primary Bedroom, Partial Bath(s), Street Entrance
- Views
- Hills
- Possession
- Close Of Escrow
- Architectural Style
- Other
- Fee
- $0
MLS and other Information regarding properties for sale as shown in Theo have been obtained from various sources such as sellers, public records, agents and other third parties. This information may relate to the condition of the property, permitted or unpermitted uses, zoning, square footage, lot size/acreage or other matters affecting value or desirability. Unless otherwise indicated in writing, neither brokers, agents nor Theo have verified, or will verify, such information. If any such information is important to buyer in determining whether to buy, the price to pay or intended use of the property, buyer is urged to conduct their own investigation with qualified professionals, satisfy themselves with respect to that information, and to rely solely on the results of that investigation.
School data provided by GreatSchools. School service boundaries are intended to be used as reference only. To verify enrollment eligibility for a property, contact the school directly.






















































































