$460,000
1,000
SQ FT
$460
SQ/FT
1214 Sereno Dr
@ Tuolumne Street - Not Listed, Vallejo
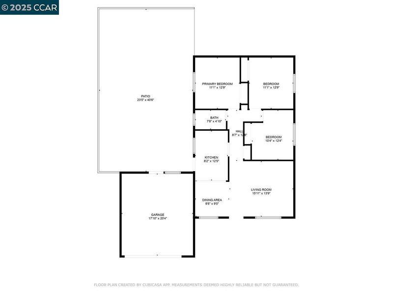
- 3 Bed
- 1 Bath
- 2 Park
- 1,000 sqft
- Vallejo
-
This home is located in Vallejo and has been well maintained. Charming 1,000 sq ft home with 5,662 sq ft lot. Just a short distance to all public schools. Located only minutes from highway 80, and shopping centers. Well maintained front yard, the bank yard has much space for family get togethers and entertainment.
- Current Status
- Active
- Original Price
- $460,000
- List Price
- $460,000
- On Market Date
- Dec 5, 2025
- Property Type
- Detached
- D/N/S
- Not Listed
- Zip Code
- 94589
- MLS ID
- 41118732
- APN
- 0053061100
- Year Built
- 1955
- Stories in Building
- 1
- Possession
- Close Of Escrow
- Data Source
- MAXEBRDI
- Origin MLS System
- CONTRA COSTA
Special Touch Homeschool
Private K-3 Religious, Coed
Students: NA Distance: 0.1mi
Johnston Cooper Elementary School
Public K-5 Elementary
Students: 485 Distance: 0.3mi
Learning Inspiration Academy
Private 1-12
Students: NA Distance: 0.4mi
John Finney High (Continuation) School
Public 9-12 Continuation
Students: 182 Distance: 0.5mi
Starting Gate School
Private PK-12 Coed
Students: 160 Distance: 0.6mi
Son Valley Academy
Private 1-11
Students: 6 Distance: 0.8mi
- Bed
- 3
- Bath
- 1
- Parking
- 2
- Attached
- SQ FT
- 1,000
- SQ FT Source
- Public Records
- Lot SQ FT
- 5,662.0
- Lot Acres
- 0.13 Acres
- Pool Info
- None
- Kitchen
- Gas Range, Gas Water Heater, Tile Counters, Disposal, Gas Range/Cooktop
- Cooling
- Ceiling Fan(s)
- Disclosures
- None
- Entry Level
- Exterior Details
- Back Yard, Front Yard, Side Yard, Landscape Front
- Flooring
- Laminate, Tile
- Foundation
- Fire Place
- None
- Heating
- Forced Air
- Laundry
- In Garage
- Main Level
- 3 Bedrooms, 1 Bath, Main Entry
- Possession
- Close Of Escrow
- Architectural Style
- Contemporary
- Construction Status
- Existing
- Additional Miscellaneous Features
- Back Yard, Front Yard, Side Yard, Landscape Front
- Location
- Rectangular Lot
- Roof
- Shingle
- Water and Sewer
- Public
- Fee
- Unavailable
MLS and other Information regarding properties for sale as shown in Theo have been obtained from various sources such as sellers, public records, agents and other third parties. This information may relate to the condition of the property, permitted or unpermitted uses, zoning, square footage, lot size/acreage or other matters affecting value or desirability. Unless otherwise indicated in writing, neither brokers, agents nor Theo have verified, or will verify, such information. If any such information is important to buyer in determining whether to buy, the price to pay or intended use of the property, buyer is urged to conduct their own investigation with qualified professionals, satisfy themselves with respect to that information, and to rely solely on the results of that investigation.
School data provided by GreatSchools. School service boundaries are intended to be used as reference only. To verify enrollment eligibility for a property, contact the school directly.

